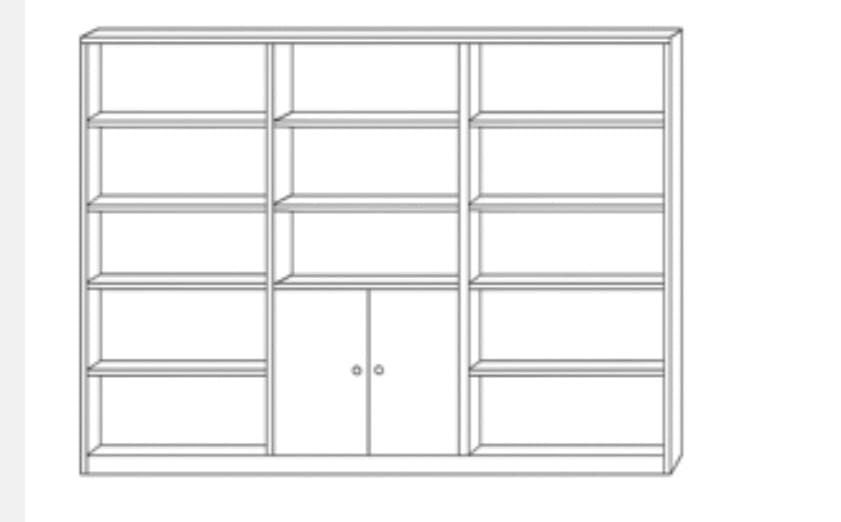
Els alumnes de 1r del Cicle Formatiu d’Embarcacions han anat a col·locar l’armari que ens va encarregar l’Arenys bàsquet. Ha estat un projecte molt complet: presa de mides, disseny, pressupost, fabricació al taller i col·locació final al magatzem del Club. Una experiència real que ens permet posar en pràctica tot el que treballem a classe i viure el procés de principi a fi. I per acabar la jornada, ens han deixat fer uns bàsquets a pista amb la màquina de tir! Gràcies per la confiança! Projectes com aquest ens ajuden a créixer professionalment i a seguir sumant experiències reals al nostre aprenentatge.
Articles recents
Etiquetes
1r d'ESO
2n d'ESO
3r d'ESO
4t d'ESO
Acollida
ajuts
Anglès
Astronomia
Audiovisuals
batxillerat
Biologia
Biologia i Geologia
Castellà
català
CFGM MEF
CF MEF
Dia Pi
educació física
ESO
filosofia
FQ
Francès
GA
GAD
GEP
Gestió administrativa
Matemàtiques
Música
Nadal
Observatori
Optativa
Orientació
Pla Escola Salut
premis
PTT
Rial
ràdio
Sant Jordi
SIEI
Socials
Sortides
Teatre
Tecnologia
Treball de Síntesi
Tutoria
Arxius
- maig 2026
- abril 2026
- març 2026
- febrer 2026
- gener 2026
- desembre 2025
- novembre 2025
- octubre 2025
- setembre 2025
- juliol 2025
- juny 2025
- maig 2025
- abril 2025
- març 2025
- febrer 2025
- gener 2025
- desembre 2024
- novembre 2024
- octubre 2024
- setembre 2024
- juliol 2024
- juny 2024
- maig 2024
- abril 2024
- març 2024
- febrer 2024
- gener 2024
- desembre 2023
- novembre 2023
- octubre 2023
- setembre 2023
- juliol 2023
- juny 2023
- maig 2023
- abril 2023
- març 2023
- febrer 2023
- gener 2023
- desembre 2022
- novembre 2022
- octubre 2022
- setembre 2022
- juny 2022
- maig 2022
- abril 2022
- març 2022
- febrer 2022
- gener 2022
- desembre 2021
- novembre 2021
- octubre 2021
- setembre 2021
- agost 2021
- juliol 2021
- juny 2021
- maig 2021
- abril 2021
- març 2021
- febrer 2021
- gener 2021
- desembre 2020
- novembre 2020
- setembre 2020
- juliol 2020
- juny 2020
- maig 2020
- abril 2020
- març 2020
- febrer 2020
- gener 2020
- desembre 2019
- novembre 2019
- octubre 2019
- setembre 2019
- juny 2019
- maig 2019
- abril 2019
- març 2019
- febrer 2019
- gener 2019
- desembre 2018
- novembre 2018
- octubre 2018
- setembre 2018
- juliol 2018
- juny 2018
- maig 2018
- abril 2018
- març 2018
- febrer 2018
- gener 2018
- desembre 2017
- novembre 2017
- octubre 2017
- setembre 2017
- juliol 2017
- juny 2017
- maig 2017
- abril 2017
- març 2017
- febrer 2017
- desembre 2016
- novembre 2016
- octubre 2016
- juliol 2016
- juny 2016
- maig 2016
- abril 2016
- octubre 2014
- setembre 2014
Calendari
maig 2026 |
||||||
|---|---|---|---|---|---|---|
| Dl | Dt | Dc | Dj | Dv | Ds | Dg |
|
1
|
2
|
3
|
||||
|
4
|
5
|
6
|
7
|
8
|
9
|
10
|
|
11
|
12
|
13
|
14
|
15
|
16
|
17
|
|
18
|
19
|
20
|
21
|
22
|
23
|
24
|
|
25
|
26
|
27
|
28
|
29
|
30
|
31
|



Comentaris recents