Edifici de Cicles Formatius

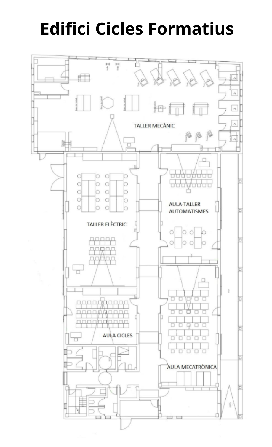
L’edifici de Cicles Formatius és un edifici de nova construcció en el que actualment es duu a terme la major part de l’activitat docent de Formació Professional que ofereix l’institut. En aquest espai hi trobem tan les aules de formació teòrica com les aules on els alumnes reben la formació pràctica: aula de mecatrònica, aula d’automatismes, taller elèctric i taller mecànic .

    

 

Share