Instal·lacions i espais

Planol centre

Llistat espais

Referència i numeració dels espais

EDIFICI ESPAI DESCRIPCIÓ
ZE ZONES EXTERIORS
A A0 ZONA DE PAS
A1 DIRECCIÓ
A2 CAP D’ESTUDIS
A3 SECRETARIA
A4 COORDINACIÓ PEDAGÒGICA
A5 OFICINA SECRETARI
A6 ARXIU EXPEDIENTS
A7 LAVABO
A8 OFICINA PROFESSORAT
A20 DEPARTAMENT FOL
A21 MAGATZEM
A22 ARXIU
A23 LAVABO
A24 DESPATX FCT
A25 DESPATX QUALITAT
B B0 ZONA DE PAS
B1 DEPARTAMENT AGRÀRIA
B2 DEPARTAMENT AGRÀRIA
B3 LAVABO
B4 DEPARTAMENT PFI
B20 AULA IFE 2n
B21 AULA IFE 1r
C C0 ZONA DE PAS
C1 SALA MENJADOR
C2 DEPARTAMENT INDÚSTRIES EXTRACTIVES
C20 ZONA DE PAS
C21 SALA REUNIONS I VIDEOCONFERÈNCIA
C22 DEPARTAMENT ESPORTIVES
C23 DEPARTAMENT ELECTROMECÀNICA
D D0 ZONA DE PAS
D1 AULA PEDRA 1r
D2 AULA INFORMÀTICA AGRÀRIA
D3 AULA FORESTALS 1r
D4 AULA PRODUCCIÓ AGROPEQUÀRIA 2n
D5 AULA PRODUCCIÓ AGROPEQUÀRIA 1r
E E0 ZONA DE PAS
E1 LAVABO
E2 AULA PEDRA 2n
E3 DEPARTAMENT SOCIO
E4 AULA ELECTROMECÀNICA 2n
E5 AULA TAPSD 2n B
E6 LAVABO
F F0 ZONA DE PAS
F1 CALDERA
F2 TALLER MECANITZAT
F3 TALLER ELECTRICITAT
F4 VESTIDORS
F5 TALLER MOTORS
F7 AULA POLIVALENT TAPSD 1r
F20 AULA ELECTROMECANICA 1r
F21 AULA FORESTALS 2n
G G0 ZONA DE PAS
G1 TALLER FPI
G2 AULA FPI
G3 MAGATZEM
H H0 ZONA DE PAS
H1 AULA EDUCACIÓ INFANTIL 2n / CAS
H2 AULA TAPSD 2n A
H3 SALA D’ACTES
H4 LAVABO
H5 ESPAI NETEJA
H6 LAVABO
H7 AULA EXCAVACIONS 2n
H8 AULA SMX 1r
H9 CAFETERIA
H10 CALDERA
H11 AULA DAW 2n
H12 AULA EXCAVACIONS 1r
H20 SALA DE PROFESSORS
H21 SERVIDORS
H22 TALLER XARXES
H23 AULA GESTIÓ ADMINISTRATIVA 1r
H24 AULA GESTIÓ ADMINISTRATIVA 2n
H25 LAVABO
H26 ESPAI NETEJA
H27 LAVABO
H28 AULA CAFEMN
H29 AULA SMX 2n
H30 AULA ASIX 1r
H31 DEPARTAMENT GESTIÓ ADMINISTRATIVA
H32 DEPARTAMENT INFORMÀTICA / LLENGÜES
H33 TALLER HARDWARE
H34 AULA EDUCACIÓ INFANTIL 1r
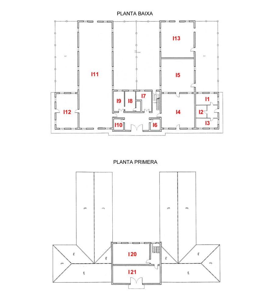
I I1,I2,I3 DUTXES / VESTIDORS
I4 AULA
I5 AULA
I7,I8, I9 DESPATX PERSONAL d’EXPLOTACIÓ
I6,I10 MAGATZEM
I11, I12 ESTANCES VAQUERIA
I13 AULA
J J0 ZONA DE PAS
J1 TALLER
J2 AULA SIMULADOR
J3 ESPAI PROFESSORAT EXCAVACIONS
J4 MAGATZEM MATERIAL
J5 AULA JARDINERIA 2n
J6 LAVABO
K K0 ZONA DE PAS
K1 TALLER AGRÀRIA
K2 AULA SIMULADORS
K3 AULA ARCO 2n
K4 AULA ARCO 1r
K5 CAMBRA DE CULTIUS
K6 CALDERA
K7 LABORATORI
K8 AULA PAISATGISME 2n
L L1 BOXES CAVALLS HÍPICA
L2 BOXES CAVALLS HÍPICA
L3 BOXES CAVALLS HÍPICA
L4 GUADARNÉS
M M1 MAGATZEM
M2 MAGATZEM
N N1 AULA SOCIO
N2 AULA SOCIO
N3 LAVABO
N4 LAVABO

Edifici A

Edifici B

Edifici C

Edifici D

Edifici E

Edifici F

Edifici G

Edifici H

 

Edifici I

Edifici J

 

Edifici K

Edifici L

Edifici M

 

Edifici N

Edifici N