De la fàbrica Gottardo de Andreis a l’Institut Badalona 4 “La Llauna”
Els orígens
Gottardo de Andreis, empresari italià, va fundar a Badalona una empresa que es dedicava a la fabricació i litografia d’envasos metàl·lics. La fàbrica, situada a l’antiga zona del Gorg on es van anar establint les indústries, es va construir en diverses fases, sense gaire relació entre elles, entre els anys 1906 i 1922. L’arquitecte encarregat de l’obra fou el badaloní Joan Amigó Barriga, principal representant de l’arquitectura modernista a Badalona.
La fàbrica, coneguda popularment com “La llauna”, s’anomenà, a partir de l’any 1919 i fins al seu tancament el 1980, G. de Andreis Metalgraf Española S.A.
La fàbrica va tancar el 1980 per la crisi del sector i la competència dels envasos plàstics.
Descripció del conjunt originari
L’edifici originari, que era una fàbrica de pisos, estava format per diversos cossos, dels quals en destaca la cantonada entre el carrer de la Indústria i el carrer Sagunt, que té una façana esgrafiada excepcional. Aquesta façana adopta l’estètica dels corrents artístics europeus de l’època: art déco i protoracionalisme. L’arquitecte va crear un edifici monumental optant per la simetria en la composició dels elements, les formes geomètriques dels esgrafiats i la forta presència dels textos i símbols de la marca. En aquest sentit, cal fer esment de la façana del carrer d’Eduard Maristany, que és publicitària: es poden observar uns mosaics en forma de medalló amb imatges i escuts d’Itàlia i Catalunya, obra del mosaïcista Lluís Bru i Salelles.
De l’interior, cal destacar la solució constructiva utilitzada per aconseguir les plantes lliures: pilars de ferro colat que suporten bigues de ferro en gelosia. L’estructura de la coberta està formada per encavallades de fusta amb peces metàl·liques que recolzen sobre les cartel·les – capitell dels pilars.
Actualment, els envasos i litografies fabricats a La Llauna són objectes molt apreciats entre els coleccionistes ( https://botiguesmuseusalas.cat/es/exposiciones/llaunes-dabans/)
Els bombardejos durant la guerra civil

Segons la Junta de Defensa Local, des del primer bombardeig a Badalona, el 13 de març de 1937, fins l’últim, el 18 de juliol de 1938, l’aviació feixista va volar 129 vegades sobre la ciutat i la va bombardejar en 17 ocasions.
Durant la Guerra Civil, la Fàbrica Gottardo de Andreis Metalgraf Española S.A es va dedicar a la fabricació de baines i al reaprofitament dels cartutxos ja utilitzats, desencapsulant-los i reconant-los. La G. Andreis, juntament amb la Casa Cros, era la fàbrica d’armament i material de guerra per excel·lència de la ciutat. Aquests dos edificis van ser els principals objectius dels bombarders entre els anys 1937-1939. En alguns casos, van haver víctimes mortals entre els treballadors, però això no va impedir que seguís la producció.
El 25 de gener de 1938, a les 13:40 les primeres bombes de l’any van caure sobre Badalona i la fàbrica G. de Andreis Metalgraf va ser víctima d’aquest bombardeig. En aquest bombardeig, l’edifici va perdre bona part de la teulada. També van haver víctimes humanes, amb un obrer mort i cinc ferits.
El 30 de juny de 1938 van haver dos bombardejos, el primer a les 9:55, i el segon, pocs minuts després. Aquest va ser el dia més dur de la Guerra Civil per Badalona. Molts carrers van quedar afectats i vàries fàbriques van ser colpides aquell dia, sent la Llauna una d’aquestes. De totes maneres, l’objectiu del bombardeig era la Casa Cros.
El projecte de rehabilitació i canvi d’ús
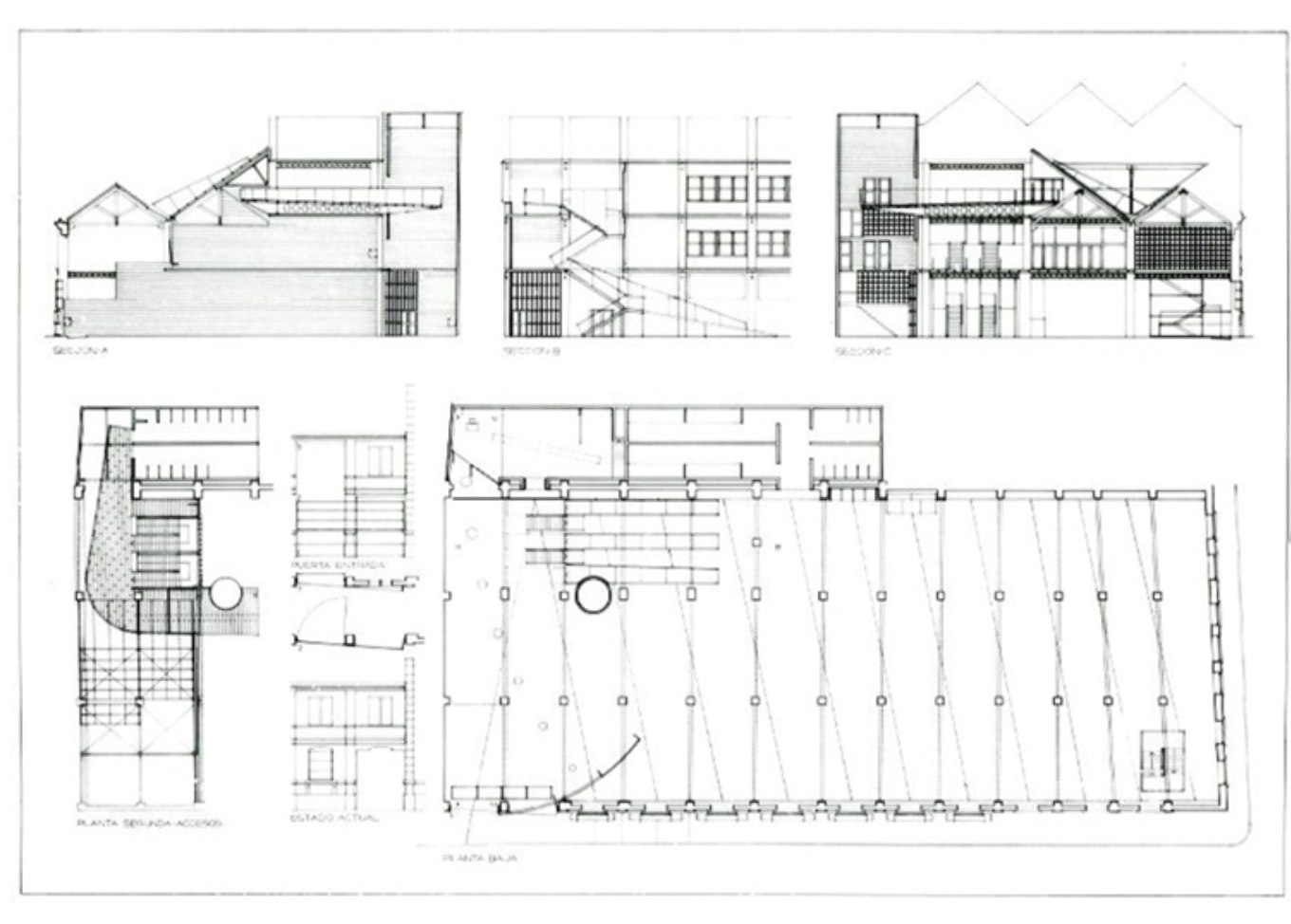
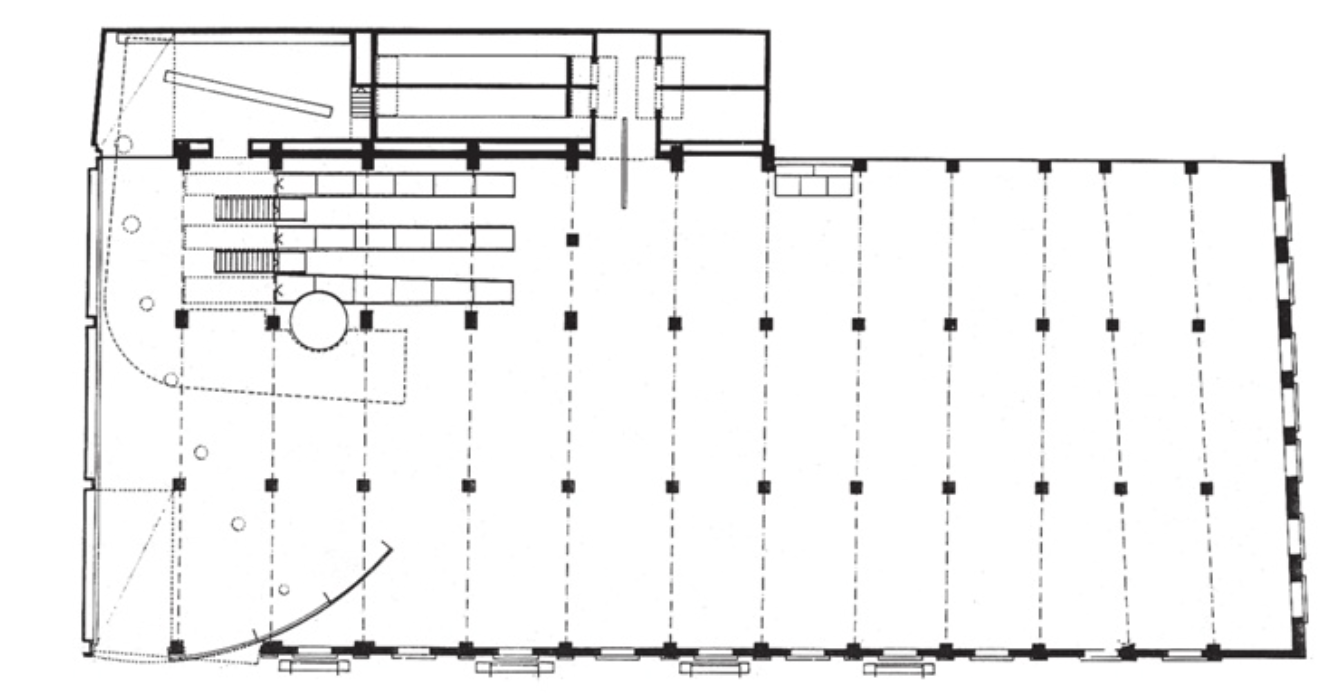
La reforma arquitectònica d’aquest edifici, per tal de transformar-lo en un institut d’educació secundària, la dugueren a terme els arquitectes Carme Pinós i Enric Miralles entre els anys 1984 i 1991.
Explicació del projecte per part dels autors
Les nostres decisions van partir del projecte dels accessos i partir d’aquí es va contruir l’espai. No va existir cap temps de projecte. Això el va fer especial. Les fotografíes foren els dibuixos, que ens van permetre trobar sens cap mediació aquestes decisions.
L’edifici és transparent en el seu interior, gràcies als moviments de la porta d’entrada.
Així, la planta baixa actua com un porxo amb les dimensions que li falten al carrer. El veritable vestíbul, lloc de xerrades entre classes, està en la planta primera, i és un balcó sobre l’entrada.
L’eliminació de trams de forjat permet tenir la màxima dimensió en alçada, així com en la planta es té en profunditat. Aquestes dimensions són la millor qualitat d’aquesta fàbrica.
La dificultat per a portar la llum a l’interior de l’edifici fa que els tancaments interiors siguin de vidre fragmentat que, a banda de permetre la necessaria transparència entre els diferents àmbits, recullen la llum i la multipliquen en els seus reflexes. La llum apareix en substituïr la coberta de teula existent a dues aigües per una coberta única de vidre transparent. L’espai resultant té qualitat d’exterior, de carrer, de llum i ombres.
La rehabilitació de la Fàbrica Gottardo de Andreis, “La Llauna”, guanyà el Premi FAD de Rehabilitació l’any 1986.
El projecte va tenir molta rellevància internacional entre d’altres llocs a la 14a Biennal d’Arquitectura de Venezia l’any 2014 en la mostra Arquitectures Empeltades.
Bé cultural d’interés Local
L’any 1984 l’edifici va ser protegit amb la catalogació com a Bé Cultural d’Interés Local


















