Benvolgudes i benvolguts,
després de l’adjudicació del projecte de la construcció de l’escola al mes de juliol ja hem pogut veure la idea guanyadora del concurs públic. El procés selectiu el va guanyar la idea de Ferran Pelegrina i Associats i el Taller d’arquitectura de Lluis Jubert.
A continuació us deixem un resum de la memòria gràfica i de la justificació de la proposta. Si voleu aprofundir més podeu accedir, amb aquest enllaç, a la licitació del projecte que és pública per facilitar la transparència de les construccions públiques.
Des de finals del curs passat hi ha en marxa una comissió que fa el seguiment del procés, composada per la comunitat educativa del municipi: mestres, famílies, experts i tot al’Ajuntament del Montmell.
Us deixem a continuació la proposta guanyadora.
Memòria i justificació del projecte
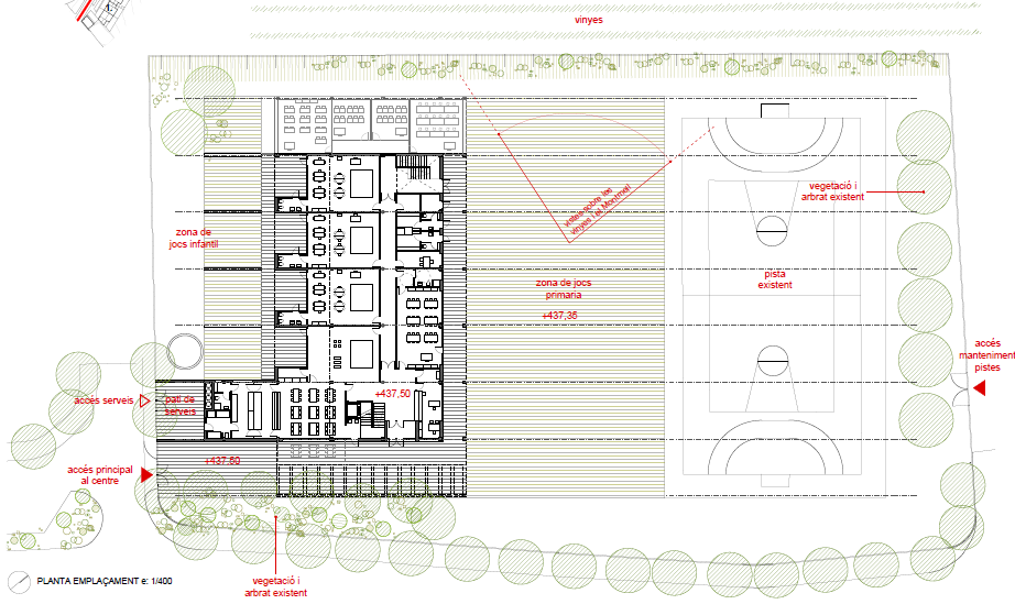
La nova escola es proposa situada al final d’un agradable passeig entre arbres, orientada paral·lelament a la pista existent dins de la parcel·la, com un cos en dos plantes lineal i compacte, que presideix el conjunt acompanyada pel pati i la pista, oferint una façana clara a l’interior del recinte. Aquesta posició li permet aprofitar l’orientació sud-oest per a les aules d’educació infantil de la PB i la orientació nord-est per les aules de primària de la P1.
La posició de l’edifici a la parcel·la separa de forma natural el pati d’infantil del de primària, i a la vegada la seva forma d’una sola peça maximitza aquest últim, evitant els espais residuals que es generen quan l’edifici s’estén al llarg de diferents peces, degut a la separació de l’edifici als límits de la parcel·la.
La posició de l’edifici i la cota elevada de la parcel·la permeten el domini del pati sobre les vinyes properes i la relació visual amb la serra del Montmell, aprofitant i posant en valor l’entorn més immediat i el més general.
Accés
L’entrada a la parcel·la es produeix per la seva cantonada més al sud i aprofita la via de servei existent del camp de futbol proper per fer l’accés al recinte.
L’edifici de l’escola rep els usuaris pròxim a aquest accés disposant en planta baixa un porxo que aixopluga l’entrada a l’edifici i que comunica física i visualment amb el pati de l’escola. L’accés principal a la via secundària existent permet l’eventual parada d’un autocar o altres vehicles. Es proposa un accés secundari pel mateix carrer per a la cuina i un altre a la part oposada de la parcel·la per a la pista, que ja sembla ser l’accés habitual a la pista existent.
Organització del programa
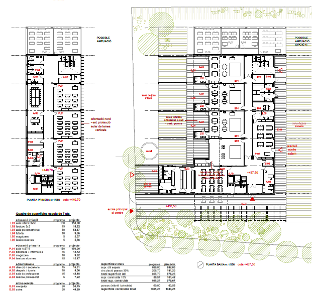
El programa s’organitza en dos plantes. Es situa l’accés en el tester més al sud de l’edifici a través d’un porxo que permet l’accés directe al pati.
A la planta baixa es desenvolupa el programa de serveis generals, com són el menjador-cuina i les dependències de secretaria i direcció, a més de la biblioteca. Aquesta última gaudeix d’un accés directe des del pati per poder-se fer servir fóra de l’horari escolar. També en aquesta planta baixa es col·loquen les aules d’infantil i les seves dependències, orientant-les al pati que es genera al sud-oest de la parcel·la. El funcionament d’aquesta zona d’infantil funciona de manera independent de la resta del centre.
A la planta primera trobem, també amb les seves dependències, les aules de primària. S’orienten al nord-est, mirant al pati i la pista existent. Les possibles ampliacions que es puguin fer fins a completar una línia (donat que l’escola té 7 uts) es preveuen al final del volum edificatori per evitar que la seva execució destorbi el funcionament de la resta de l’escola. El volum previst a l’ampliació admetria la construcció en PB de l’aula de desdoblament, aula de recolzament/reforç, aula específica i aula d’informàtica.
En P1 es podrien fer dos aules de primària de la mateixa mida que les existents. Flexibilitat en la distribució de l’espai interior i aprofitament de la superfície
L’edifici optimitza al màxim l’aprofitament de la seva superfície construïda. La seva tipologia de volum compacte en planta baixa i planta pis, amb passadís central i dependències a banda i banda, redueix a mínims la superfície dels recorreguts. Tanmateix redueix el perímetre lineal de façana, la coberta a impermeabilitzar i les fonamentacions.
La seva disposició en planta i la seva ubicació dins la parcel·la preveuen i faciliten ampliacions del centre, continuant el mateix volum longitudinalment en un dels seus extrems.
Qualitat compositiva i formal
Es tracta d’un edifici sobri, aïllat, format per un prisma regular de base rectangular, de PB i planta pis, compacte, que minimitza el coeficient de forma, els costos de construcció i manteniment i que aporta la qualitat compositiva i formal pel ritme i la proporció de la relació entre buit i ple de les seves obertures.
Es important destacar l’aparició d’un porxo a la planta baixa de l’institut que rep els usuaris i permet una connexió visual amb el pati i la pista existent. Simplicitat en la solució estructural de la proposta, materials i solucions
Recreacions del projecte.











Hola me gustaría saber para cuando estaría listo el nuevo colegio
Gracias
Saludos